Lo colectivo
Se propone un edificio de carácter público que reúna todas las funciones de la Conferencia Episcopal Paraguaya, en una estructura inserta en el parque seminario que relacione el contexto natural con la ciudad. La ciudad se hace o se re-hace, ocupando y re-iventando sus espacios. Consolidando aquellos donde la memoria colectiva se ha fijado y dando un nuevo sentido a aquellos que por diversas razones han perdido su carácter originario. La Iglesia ha sido por siglos responsable de la ciudad y sus espacios, los ha construido y determinado, la oportunidad de un nuevo edificio en el parque permite pensar en nuevas relaciones, en nuevos lugares, en nuevos espacios. Los usos y las dinámicas sociales actuales pujan por recuperar la dimensión pública del espacio, recuperar el lugar de encuentro y la memoria. Repensar estos espacios es repensar esta parte de la ciudad. La ciudad está sufriendo grandes transformaciones y es la oportunidad de la Iglesia la de participar de este proceso a través de su nueva sede. Imaginamos un proyecto que extiende el espacios público del conjunto actual y la ciudad hacia el parque, capaz de introducir la escena pública. Esto instala como tema central al espacio público. Pensando al proyecto sobretodo como construcción de este espacio público; metáfora de una nueva sociedad, de una Iglesia abierta y participativa, que abre sus espacios al encuentro con el otro.
Espacio público
Se propone la construcción del espacio público como elemento en positivo del proyecto. Desde la necesidad de transformar los espacios donde la iglesia hace sociedad, rompiendo los límites entre público y privado. Las edificaciones confinan, conforman y definen los lugares del proyecto. Este espacio público asume en el proyecto distintas conformaciones. Cubierto, abierto, interior, exterior, tratando siempre de construir un sistema de lugares que van desde la calle al parque y del parque al interior del edificio. La vida urbana esta condicionada por los espacios, caracterizada por los edificios que los conforman, la calidad de la vida urbana, entonces, no puede prescindir de la arquitectura, hacer nuestras ciudades más habitables es hacer sus espacios de calidad. Transformar el ser colectivo es también romper el limite entre lo mío y lo nuestro, la urbanidad pasa por sus plazas, callejones, rincones, texturas, perfumes, fragmentos y continuidades.
Implantación
Un análisis sobre el carácter, el tipo de espacios y el público a quienes está destinada cada una de las funciones a desarrollar nos han llevado a definir una cota intermedia, aprovechando los desniveles presentes en el terreno.
Ésta aporta continuidad con el parque, un lugar de contacto social, desde donde articular las conexiones a los distintos programas: uno abajo y otro arriba; uno público y otro privado.
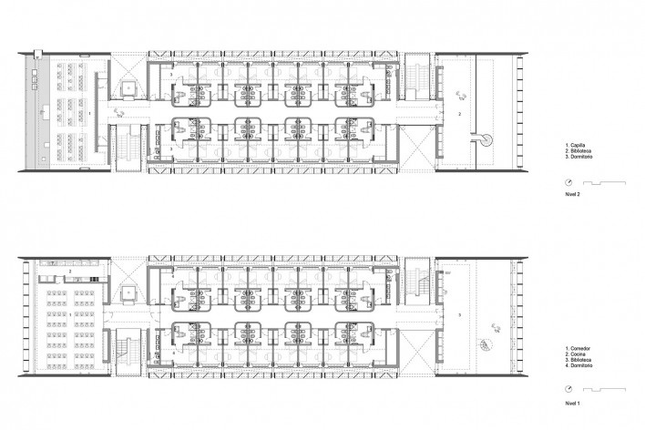
Dos cuerpos y una plaza
El proyecto se articula mediante una plaza de acceso que organiza dos partes distintas, una pública, que comprende las oficinas permanentes de la Conferencia Episcopal Paraguaya, la asamblea, el oratorio y las distintas coordinaciones pastorales; y otra privada destinada a hospedaje de los obispos y albergue de visitantes. Dos cuerpos diferentes e interdependientes, uno apoyado al suelo y el otro sobre-elevado, articulados por una plaza.
Plaza de acceso
Es el lugar de relación con el parque del seminario, es una donación de la Iglesia a la vida pública más allá de sus funciones inherentes; abierta y cubierta se extiende por debajo del cuerpo superior ocupando toda la cubierta de las oficinas de la Conferencia Episcopal Paraguaya, generando permeabilidad y relación, construyendo lugares de encuentro, reuniones espontáneas y lanzamientos. Desde esta terraza se ponen en contacto los distintos niveles a partir de diversos sistemas de circulación.
Cuerpo inferior: claustro
Sistema de galerías públicas que rememoran los antiguos conventos, las distintas oficinas de la Conferencia Episcopal Paraguaya y sus coordinaciones pastorales en torno a un patio central dentro del cual dos figuras se distinguen, la asamblea y el oratorio. Estos adquieren la singularidad y la jerarquía que merecen, un espacio de debate y otro de recogimiento declaran su sentido más profundo.
Cuerpo superior: albergue
Resguarda los espacios de la vida privada de los obispos y sus invitados, puesto en relación directa con las copas de los arboles se eleva sobre la plaza de acceso definiendo la sombra, la gran galería de ingreso al conjunto.
El edificio se organiza en dos niveles a partir de una estructura lineal de celdas-dormitorios y dos extremos — cabeceras que brindan los espacios de apoyo: lugares de estar; comedor; biblioteca, archivos eclesiásticos; y una capilla ubicada en el nivel superior que se abre al parque circundante.
hoja técnica
proyecto
Casa Pastoral Monseñor Juan Sinforiano Bogarín — Conferencia Episcopal Paraguaya
ubicación
Asunción, Paraguay
año
Proyecto: 2015
Construcción: 2020.
arquitectura
Arquitectos Nicolás Berger, Giacomo Favilli y Sergio Ruggeri (autores)
construcción
Alberto Barrail / ABH y Hijos S.A.
residente de obra
Arquitecto Carlos Areco
desarrollo ejecutivo
Arquitecto Fernando Delfino
cálculo estructural
Ingeniero Julio Alvarez
instalación eléctrica y especiales
Ingeniero José A. Bachero
instalaciones hidráulicas y sanitarias
Ingeniero Miguel Ángel González Merlo
foto
Federico Cairoli, Luis Ayala y Daniel Ojeda













