A escola e residência da Comunidade Religiosa Teresiana de Ganduxer é um recinto composto por seis pavilhões, com a singularidade e o interesse de o primeiro deles ter sido desenhado e construído por Antoni Gaudí.
O fundador da comunidade teresiana, San Enrique de Ossó, encomendou, em 1889, o projeto a Antoni Gaudí com uma tripla missão: localizar a escola primária para meninas, a sede principal do Conselho Geral e um internato para meninas.
A escola cresceu muito ao longo dos anos e se adaptou educacional e construtivamente às necessidades e demandas de qualquer complexo educacional.
A particularidade do conjunto, com classificação de Bem Cultural de Interesse Nacional, significou cuidados especiais tanto para o edifício como para a sua envolvente.
Nos últimos anos, a direção escolar tem vindo a organizar todos os seus espaços, ampliando as suas instalações e adaptando-se às exigências atuais da sua atividade. Entre as intervenções necessárias do estabelecimento de ensino estava a necessidade básica de conclusão da licença ambiental do complexo. O projeto de licença ambiental vinha se desenvolvendo há muitos anos e a dificuldade de intervenção no pavilhão de Gaudí tornou praticamente inviável o seu cumprimento. Por fim, estudou-se a opção de desvincular o edifício Gaudí de atividades escolares para lhe dar uma utilização de atendimento ao público e residencial da comunidade.Teresa. A decisão permitiu desvendar e limitar bastante as ações necessárias para dotar o complexo escolar dos requisitos de segurança que uma atividade deste tipo necessita. A maior intervenção foi a construção de uma escada de evacuação num dos pavilhões, contíguo ao edifício de Gaudí, o Pabellón Santa Teresa (edifício construído em 1946, que adere discretamente ao edifício de Gaudí).
O Pavilhão de Santa Teresa é composto por cave, rés-do-chão mais sótão e três pisos típicos.
O projeto envolveu um trabalho detalhado para explicar e concordar com o património da Câmara Municipal de Barcelona sobre o seu impacto, a sua fluidez com o existente e a sua definição para integração com o pavilhão desenhado e construído por Gaudí.

Escada de evacuação na área protegida Teresianas Ganduxer, Barcelona, Espanha, 2022. Arquitetos Felipe Pich-Aguilera, Teresa Batlle e Ute Müncheberg / Picharchitects / Pich-Aguilera
Foto/photo Simão Garcia
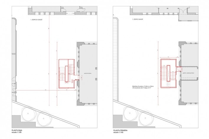
Após análise da estrutura do Pavilhão e estudo das diferentes possibilidades de localização da escada de evacuação, foi proposta uma escada exterior, limitando-a ao vão central da fachada lateral, com o interesse de respeitar a modulação existente. A sua posição coincide com o final de um corredor interior que dá acesso a todas as salas de aula e se liga longitudinalmente a uma segunda escada.
O volume de acesso do edifício Gaudí e algumas de suas treliças, seus ritmos, transparência e textura são tomados como referência.
O projeto propõe um volume e recinto com composição tradicional em treliça cerâmica, com o expresso interesse de que através dele se possa visualizar a fachada do pavilhão existente e compreender os diferentes períodos de intervenção. A escada é projetada com elementos metálicos pré-fabricados montados no local.
O projeto estuda cuidadosamente a visão do Edifício Gaudí, tanto do exterior das instalações como do interior. A proposta permitiu a passagem em todo o seu contorno, bem como dignificou um espaço residual da escola.

Escada de evacuação na área protegida Teresianas Ganduxer, Barcelona, Espanha, 2022. Arquitetos Felipe Pich-Aguilera, Teresa Batlle e Ute Müncheberg / Picharchitects / Pich-Aguilera
Foto/photo Simão Garcia
ficha técnica
projeto
Escada de evacuação na área protegida Teresianas Ganduxer
local
Rua Ganduxer n. 85. Barcelona, Espanha
ano
2022
superficie
450m²
arquitetura
Arquitetos Felipe Pich-Aguilera, Teresa Batlle e Ute Müncheberg / Picharchitects / Pich-Aguilera
gestor de projeto
Umma
construção
Reconsa
cálculo estrutural
Angel Sendarrubias / Picharquitetos / Pich-Aguilera
gestão de obras
Ute Muncheberg e Angel Sendarrubias
foto
Simão Garcia






![Escada de evacuação na área protegida Teresianas Ganduxer, plantas entorno e implantação, Barcelona, Espanha, 2022. Arquitetos Felipe Pich-Aguilera, Teresa Batlle e Ute Müncheberg / Picharchitects / Pich-Aguilera<br />Imagem divulgação/ disclosure image/ imagen divulgación [Picharchitects / Pich-Aguilera]](../../../../media/images/magazines/grid_12/0fac3d139f3c_picharchitects_escalera06.jpg)
![Escada de evacuação na área protegida Teresianas Ganduxer, planta térreo e superior, Barcelona, Espanha, 2022. Arquitetos Felipe Pich-Aguilera, Teresa Batlle e Ute Müncheberg / Picharchitects / Pich-Aguilera<br />Imagem divulgação/ disclosure image/ imagen divulgación [Picharchitects / Pich-Aguilera]](../../../../media/images/magazines/grid_12/7984543243b4_picharchitects_escalera07.jpg)
![Escada de evacuação na área protegida Teresianas Ganduxer, fachadas com estrutura e com cerâmica, Barcelona, Espanha, 2022. Arquitetos Felipe Pich-Aguilera, Teresa Batlle e Ute Müncheberg / Picharchitects / Pich-Aguilera<br />Imagem divulgação/ disclosure image/ imagen divulgación [Picharchitects / Pich-Aguilera]](../../../../media/images/magazines/grid_12/441a4d889f9d_picharchitects_escalera08.jpg)
