In order to have a more interesting navigation, we suggest upgrading your browser, clicking in one of the following links.
All browsers are free and easy to install.
português
O Fórum de Entidades em Defesa do Patrimônio Cultural Brasileiro posiciona-se contra a construção de um Zeppelin no topo de um dos edifícios ecléticos de destaque da cabeça de quadra que conforma o Marco Zero no Bairro do Recife.
DEFESA DO PATRIMÔNIO CULTURAL BRASILEIROS, Fórum de Entidades em; MDU UFPE, PPG em Desenvolvimento Urbano; DAU UFPE, Departamento de Arquitetura e Urbanismo; UNICAP, Curso de Arquitetura e Urbanismo; SODECA, Sociedade Olindense de Defesa da Cidade Alta. Um Zeppelin no marco zero do bairro do Recife? Minha Cidade, São Paulo, ano 24, n. 284.01, Vitruvius, mar. 2024 <https://vitruvius.com.br/revistas/read/minhacidade/24.284/8974>.
Ao Sr. Leandro Grass, presidente do Instituto do Patrimônio Histórico e Artístico Nacional – Iphan
Recurso
Objeto do recurso: Decisão do Superintendente do Iphan Pernambuco através dos Ofícios n. 26/2024/Iphan_PE-Iphan e n. 27/2024/Iphan_PE-Iphan, aprovando os projetos de intervenção previstos para os imóveis de n. 23 da avenida Rio Branco e n. 58 da avenida Marquês de Olinda, respectivamente.
O presente recurso tem como objeto de questionamento a Reforma da decisão recorrida assinada por Jacques Ribemboim, atual superintendente do Iphan-PE, no dia 04/03/2024 que, indo de encontro à análise técnica realizada pelo próprio Iphan-PE, decide “pela aprovação da proposta de intervenção ou projeto com o consequente deferimento do requerimento e a concessão da autorização, inclusive a instalação artística reversível e de caráter provisório aqui identificada como “restaurante no formato de Zeppelin” (Ofícios n. 26/2024/Iphan_PE-Iphan e n. 27/2024/Iphan_PE-Iphan).
A solicitação de aprovação do projeto para os imóveis de n. 23 da avenida Rio Branco e de n. 58 da avenida Marquês de Olinda tramita junto ao Iphan-PE, desde 15 de setembro de 2023, através dos processos de no 01498.000920/2023-41 (avenida Rio Branco, 23) e n. 01498.000922/2023-30 (avenida Marquês de Olinda, 58) que foram objeto de consulta detalhada, através do sistema SEI! do Iphan, para a construção do presente recurso.
Os fatos
Os imóveis em questão estão inseridos, como imóveis de destaque, no perímetro do Bairro do Recife que é reconhecido como Patrimônio Nacional, tombado pelo Iphan em 1998 através do Processo 1168-T-85 – Conjunto Arquitetônico, Urbanístico e Paisagístico do Antigo Bairro do Recife (Processo 01498.002435/2012-59). O tombamento reconhece a importância do conjunto que resulta da reforma urbana realizada no início do século 20, seguindo o modelo da Paris do Barão de Haussmann. O traçado radial que parte do Marco Zero, marcado sobretudo pelos “boulevards” que se constituem através das avenidas Rio Branco e Marquês de Olinda, com seus imponentes edifícios ecléticos entre os quais estão os edifícios para os quais se propõe a intervenção, representam a influência da belle époque no Brasil e no Recife. “Este novo traçado urbanístico, tipo ferro de engomar, é enriquecido por grandes prédios em estilo eclético que resultou na demolição de grande parte da cidade colonial. Este traçado, e estes prédios, ainda podem e devem ser preservados” (fl. 400 do Processo 01498.002435/2012-59). Os edifícios em questão, juntos, conformam uma das principais quadras “ferro de engomar” do conjunto.

À esquerda, edifício em risco no centro histórico do Recife, 2013
Foto Natália Vieira
Estando inseridos neste perímetro tombado em nível federal e classificados como imóveis de destaque, qualquer intervenção sobre eles necessita respeitar tanto o Decreto Lei n. 25, de 30 de novembro de 1937 (que “Organiza a proteção do patrimônio histórico e artístico nacional”) quanto a Portaria n. 420, de 22 de dezembro de 2010 (que “Dispõe sobre os procedimentos a serem observados para a concessão de autorização para realização de intervenções em bens edificados tombados e nas respectivas áreas de entorno”).
Em 31/10/23, o corpo técnico do Iphan-PE, de forma unânime, assertiva e embasada na legislação federal, emitiu parecer técnico fundamentado (Parecer Técnico no 191/2023/Cotec Iphan-PE) pela não-aprovação deste projeto em respeito à legislação pertinente, identificando a forte descaracterização que decorreria do projeto em um dos principais imóveis de destaque do conjunto tombado que conforma a Praça do Marco Zero, ou seja, na leitura da paisagem histórica do bairro. O parecer observa, entre outras coisas, a substituição de todas as esquadrias do 1º e 2º pavimentos das edificações e a construção de um restaurante em forma de Zeppelin sobre a laje de cobertura de ambas as edificações, ultrapassando o gabarito permitido (1,22 m mais alto que a cúpula do n. 23 da avenida Rio Branco) e ficando praticamente colado à platibanda de ambas as edificações pela extensão de 4,72m das fachadas que se voltam para a avenida Marquês de Olinda, como aspectos que vão de encontro à legislação federal de proteção do patrimônio. O referido parecer apresenta uma série extensa de parâmetros e critérios a serem adotados em imóveis do conjunto tombado e, em especial, para imóveis de destaque no item “Motivações e recomendações”.
Em 23/01/24, a Secretaria de Política Urbana e Licenciamento (Sepul) da Prefeitura do Recife emite um documento intitulado “Pronunciamento Conjunto Sepul”, que é inserido no processo e que se posiciona em favor da aprovação dos projetos previstos para os imóveis de n. 23 da avenida Rio Branco e de n. 58 da avenida Marquês de Olinda, desde que estes atendam a algumas orientações, entre as quais destacamos: “Impossibilidade de remembramento, podendo existir interligação entre os imóveis, com a preservação da leitura individual das edificações; Diferenciação dos acabamentos entre os dois imóveis de forma a garantir a leitura individual das fachadas (...); Será admitida a instalação de obras temporárias em estrutura removível sobre a edificação de forma que caracterize uma intervenção artística, temporária e reversível durante o funcionamento da atividade pleiteada; Apresentar a proposta da instalação temporária assinada pelo artista responsável pelo elemento escultórico (intervenção museológica) (...).” Este mesmo documento propõe ainda que o processo de licenciamento seja desmembrado em dois: um para “a reforma e restauro em processo de aprovação de projeto e” outro para “a instalação do Zeppelin (elemento artístico temporário) em processo de ‘Eventual – instalação de obra temporária”. O documento afirma ainda que “A instalação proposta, o Zeppelin, pode ser inserida nas edificações preservadas as características que o classificarão como elemento desmontável, reversível, provisório, escultural, de intervenção artística, agregado ao patrimônio cultural material em decorrência da necessidade de torná-lo capaz de abrigar o centro cultural proposto”.

Protegido por tela, edifício em risco no centro histórico do Recife, 2023
Foto Natália Vieira
Em 17/02/2024, com base nos argumentos oferecidos pela Sepul, a arquiteta Lorena Veloso entra com uma defesa/recurso contra a desaprovação do projeto pelos técnicos do Iphan e são inseridas novas pranchas do projeto que acompanham o texto do recurso.
Em 20/02/2024, através do Parecer Técnico n, 13/2024/Cotec Iphan-PE (SEI n.5113945), mais uma vez por unanimidade, o corpo técnico do Iphan-PE reafirma a decisão e análise já realizada, mantendo o indeferimento da proposta de intervenção e sendo incisivo quanto às normativas preservacionistas às quais o imóvel deve responder. O parecer destaca que a defesa/recurso apresentada pela arquiteta se baseia no Pronunciamento Conjunto da Sepul e desconsidera a extensa orientação acerca dos parâmetros e critérios a serem adotados em imóveis do conjunto tombado e, em especial, para imóveis de destaque, já apresentada no Parecer técnico n. 191/2023/Cotec Iphan-PE de 31/10/2024. O parecer destaca ainda que, segundo a Portaria 420/2010, não há previsão da categoria “instalação artística provisória” e que a mesma portaria identifica que “instalações provisórias” (item X, artigo 3o) são “aquelas de caráter não permanente, passíveis de montagem, desmontagem e transporte, tais como “stands”, barracas para feiras, circos e parques de diversões, iluminação decorativa para eventos, banheiros químicos, tapumes, palcos e palanques”. Assim, coerentemente com o que define a legislação federal, o parecer decide pela manutenção da desaprovação.
Em 26/02/2024, os representantes oficiais de várias instituições que reúnem profissionais da área (Icomos Brasil, Núcleo Pernambuco do Icomos Brasil, Programa de Pós-Graduação em Desenvolvimento Urbano da UFPE e Instituto de Arquitetos do Brasil – Departamento de Pernambuco – IAB-PE) se pronunciaram publicamente através de uma Carta de Apoio ao Corpo Técnico do Iphan PE e em defesa do conjunto tombado do Bairro do Recife em defesa do posicionamento emitido por unanimidade pelos técnicos do órgão federal através do parecer negativo para o projeto, e, ainda, acerca da necessidade de estender o debate sobre esses casos sensíveis à sociedade em geral (1).
Em 28/02/2024, o presidente do Conselho de Arquitetura e Urbanismo de Pernambuco (CAU/PE) envia ao Superintendente do Iphan-PE uma “Carta de apoio do Conselho de Arquitetura e Urbanismo de Pernambuco (CAU/PE) ao corpo técnico de arquitetos e urbanistas do Instituto do Patrimônio Histórico e Artístico Nacional (Iphan) em defesa do conjunto tombado do bairro do Recife (Parecer técnico n. 191/2023/Cotec e Parecer técnico n. 13/2024/Cotec Iphan-PE/Iphan_PE)” onde faz referência direta à Carta Aberta citada acima e defende que o parecer realizado pelos técnicos do Iphan-PE “é digno de nosso respeito e apoio institucional, por trazer, com os devidos critérios e justificativas, todos os elementos técnicos necessários, que embasaram a não aprovação de pretensas intervenções que, de acordo com o referido parecer, além de incorrer na descaracterização dos citados imóveis e do conjunto arquitetônico e urbanístico do Bairro do Recife, trariam forte ruído sobre a leitura da paisagem desse sítio, além de promover uma mutilação daquele que é considerado hoje como o principal cartão postal da Cidade do Recife – o conjunto arquitetônico da praça do Marco Zero –, lugar que se constitui no berço da capital pernambucana (2).
Em 29/02/2024, o Conselho Estadual de Preservação do Patrimônio Cultural (CEPPC) emite uma Moção de Aplausos que “se congratula com a postura do corpo técnico da Superintendência do Instituto do Patrimônio Histórico e Artístico Nacional em Pernambuco (Iphan-PE), que votou pela não-aprovação das propostas apresentadas no âmbito dos processos n. 01498.000920/2023-41 e n. 01498.000922/2023-30, que tratam da análise de intervenção arquitetônica nos imóveis no 23 da avenida Rio Branco e de n. 58 da avenida Marquês de Olinda, respectivamente, ambos localizados no Bairro do Recife” (3).
Apesar de todas essas manifestações públicas em apoio ao parecer dos técnicos do Iphan-PE, indo de encontro tanto aos seus técnicos quanto aos diversos especialistas da área que se pronunciaram a respeito do referido projeto, o superintendente do Iphan-PE decide pela reforma da decisão recorrida e, no dia 04/03/2024 emite os Ofícios n. 26/2024/Iphan_PE-Iphan e n. 27/2024/Iphan_PE-Iphan que, decidem “pela aprovação da proposta de intervenção ou projeto com o consequente deferimento do requerimento e a concessão da autorização, inclusive a instalação artística reversível e de caráter provisório aqui identificada como restaurante no formato de Zeppelin”.

Vista geral do Marco Zero, com um dos edifícios em risco, protegido por tela, 2023
Foto Natália Vieira
Segundo a legislação estadual que institui o tombamento de bens pelo estado de Pernambuco (Lei n. 7.970, de 18/09/1979) “Consideram-se tombados pelo Estado, sendo automaticamente levados a registro, todos os bens que, situados no seu território, sejam tombados pela União” (artigo 4º). Entretanto, apesar disso, em toda a consulta realizada no processo de acesso público via SEI! Iphan não foi localizado qualquer parecer técnico emitido pela Fundação do Patrimônio Histórico e Artístico de Pernambuco – Fundarpe, o órgão estadual que tem em suas atribuições a preservação dos bens tombados pelo Estado de Pernambuco, ou mesmo o registro de participação da entidade em reuniões conjuntas entre o Iphan-PE e prefeitura, por exemplo. Diante desse fato, em 05/03/2024, os representantes oficiais de algumas instituições do estado de Pernambuco (Núcleo Pernambuco do Icomos Brasil, Programa de Pós-Graduação em Desenvolvimento Urbano da UFPE e Instituto de Arquitetos do Brasil – Departamento de Pernambuco – IAB-PE) solicitaram um posicionamento técnico da Fundarpe acerca do projeto de intervenção previsto para os imóveis de n. 23 da avenida Rio Branco e de n. 58 da avenida Marquês de Olinda (4).
Em 11/03/2024, através do Parecer técnico n. 21 (47671079) – GPM/DPPC, a Fundarpe responde à solicitação enviada e, após desenvolvimento da análise, conclui que “(...) a proposta (...) mostra-se incompatível com os princípios que norteiam a preservação das edificações em questão, integrantes do Conjunto Arquitetônico, Urbanístico e Paisagístico do Antigo Bairro do Recife, tombado.” (p. 5) Afirma ainda que: “A configuração espacial do acréscimo proposto provoca uma interferência visual pronunciada, afetando não apenas as edificações alvo da intervenção, mas também a própria leitura da paisagem urbana histórica do Bairro do Recife. Este impacto é amplificado pelo fato de que as edificações em questão compõem uma das quadras mais significativas do bairro, voltada para a praça do Marco Zero. (...) Quanto ao projeto de restauro, salientamos a importância de apresentação do detalhamento dos mapas de danos das esquadrias, de forma que fique clara a razão pela qual propõe-se a substituição de todas as esquadrias em madeira do imóvel n. 58 (portas e janelas) para esquadrias em alumínio fundido. De forma geral, o restauro destes elementos é a ação recomendada e este deve ser priorizado, atendendo ao princípio da mínima intervenção. Assim, consideramos que os pareceres técnicos emitidos pelo Iphan (Parecer técnico n. 192/2023/Cotec Iphan-PE, Parecer técnico n. 191/2023/Cotec Iphan-PE, Parecer técnico n. 15/2024/Cotec Iphan-PE, Parecer técnico n. 13/2024/COTEC Iphan-PE) abordam de forma abrangente os critérios de intervenção, acima mencionados, para a área em questão. Entendemos que tais diretrizes estão fundamentadas em princípios técnicos essenciais para a devida preservação do conjunto arquitetônico tombado. A Fundarpe, em linhas gerais, concorda com os argumentos apresentados pelo corpo técnico do Iphan Pernambuco, exceto quanto aos parâmetros restritivos à utilização da área de cobertura dos imóveis. Considerando o exposto, a Fundarpe conclui que os projetos de restauro, reforma e acréscimo de área para os imóveis n. 23 e 58, presentes nos processos do SEI Iphan n. 01498.000920/2023-41 e 01498.000922/2023-30, não são compatíveis com a preservação dos atributos reconhecidos no Conjunto Arquitetônico, Urbanístico e Paisagístico do Antigo Bairro do Recife. Esta Fundação, entretanto, entende que é viável a aprovação de uma proposta de ocupação da cobertura dos imóveis, desde que em consonância e harmonia com as características valoradas do conjunto acautelado” (5).
Ainda na última sexta-feira, dia 08/03/2024, os 1.338 delegados culturais reunidos na IV Conferência Nacional de Cultura, em Brasília, aprovaram uma Moção de repúdio contra a aprovação, pelo Superintendente do Iphan em Pernambuco do projeto do restaurante em formato de Zepelim, que contrariou a decisão do corpo técnico do órgão (6).
Os questionamentos e recurso solicitado
Diante do exposto, e utilizando da possibilidade de recurso da decisão do Superintendente Estadual conforme previsto no artigo 39 da Portaria 420/2010 (Art. 39. Nos processos de Reforma/Construção Nova e Restauração, da decisão proferida pelo Superintendente Estadual caberá recurso ao Presidente do Iphan, no prazo de 15 dias), vimos, por meio deste, solicitar a manifestação do Presidente do Iphan e do Departamento de Patrimônio Material e Fiscalização – Depam-Iphan quanto ao referido processo por considerarmos que a Reforma da decisão recorrida assinada por Jacques Ribemboim no dia 04/03/2024 além de ir de encontro à análise técnica realizada pelo próprio Iphan-PE, fere a portaria 420/2010, especialmente ao procurar enquadrar a obra arquitetônica de um restaurante enquanto “instalação artística reversível e de caráter provisório” (Ofícios n. 26 e n. 27/2024/Iphan_PE-Iphan).
É bem verdade que esta mesma Portaria prevê, em seu Art. 37:
Art. 37. O Superintendente do Iphan poderá confirmar, reformar ou anular a decisão recorrida, devendo a sua decisão conter a indicação dos fatos e fundamentos que a motivam.
Parágrafo único. A reforma da decisão recorrida implicará:
I - ou na aprovação da proposta de intervenção ou projeto e consequente deferimento do requerimento com a concessão da autorização;
II – ou na desaprovação da proposta de intervenção ou projeto e consequente indeferimento do requerimento de autorização de intervenção.
Porém, a possibilidade de reforma da decisão não exime o Superintendente Estadual de respeitar os demais artigos desta e de outras legislações federais de preservação do patrimônio histórico e artístico nacional.

Vista do conjunto de edifícios de destaque do Marco Zero com seus característicos torreões e cúpulas; à esquerda, protegido por tela, um dos edifícios em risco, 2023
Foto Natália Vieira
O parecer do Superintendente de Pernambuco está embasado nos argumentos que foram colocados no documento chamado “Pronunciamento conjunto da Sepul” realizado pela Prefeitura do Recife e não dialoga com a análise de seu próprio corpo técnico especializado no tema. A Reforma da decisão do Superintendente de Pernambuco não apresenta qualquer argumentação em relação à extensa orientação acerca dos parâmetros e critérios a serem adotados em imóveis do conjunto tombado e, em especial, para imóveis de destaque, já apresentada aos projetistas responsáveis através do Parecer técnico n. 191/2023/Cotec Iphan-PE de 31/10/2024.
Além disso, o enquadramento da obra do “restaurante no formato de Zeppelin”, conforme citado na Reforma da decisão, pelo duperintendente de Pernambuco como “instalação artística reversível e de caráter provisório” é equivocado do ponto de vista técnico da arquitetura e vai de encontro ao que dispõe a Portaria 420/2010 sobre o que é instalação temporária.
A argumentação sobre a “provisoriedade” do “restaurante no formato de Zeppelin, assegurando as características de reversibilidade e provisoriedade para a sua instalação”, não tem respaldo na legislação do Iphan para a qual está muito claro que tipo de estrutura pode ser considerada como “temporária”. O fato é que o projeto apresentado pretende abrigar a atividade de um restaurante, cujo uso pressupõem uma estrutura muito mais complexa do que a dita “intervenção artística”. O parecer realizado pelos técnicos do Iphan-PE (Parecer técnico n. 13/2024/Cotec Iphan-PE – SEI n. 5113945) já destacava essa incompatibilidade com a legislação ao informar que, segundo da Portaria 420/2010, não há previsão da categoria “instalação artística provisória” e que a mesma portaria identifica que “instalações provisórias” (item X, artigo 3o) são “aquelas de caráter não permanente, passíveis de montagem, desmontagem e transporte, tais como “stands”, barracas para feiras, circos e parques de diversões, iluminação decorativa para eventos, banheiros químicos, tapumes, palcos e palanques”. Observamos, portanto, que o parecer técnico decide pela Manutenção da desaprovação em respeito à Portaria 420/2010 e que a Reforma da decisão pelo Superintende Estadual fere a legislação preservacionista federal.
Para deixar mais claro que não se trata de “obra artística temporária”, destacamos que para edificar o restaurante será necessário, acima das edificações que são imóveis de destaque no conjunto tombado nacionalmente:
1) a construção de paredes em drywall;
2) a construção de laje em lightwall;
3) a colocação de piso dekton cinza;
4) a construção de escada metálica;
5) a instalação de portas e esquadrias metálicas com vidros, nas paredes construídas;
6) a construção de pilares chumbados no piso e vigas metálicas;
7) a instalação de coberta de lona branca feita em laminado sintético de PVC;
8) construção do sistema hidráulico e elétrico para a instalação de banheiros femininos e masculino (3 vasos sanitários, 03 pias);
9) a construção de plataforma elevatória em metal com vidro.

Poligonal de tombamento Federal e Estadual delimitada pelo polígono vermelho
Imagem por satélite do Bairro do Recife [Google Earth 2024, edição Fundarpe]
Além de não ser possível enquadrar uma obra arquitetônica dessa natureza como “instalação temporária”, também seria preciso considerar qual o reforço estrutural necessário para poder receber o peso desta estrutura. Não foi apresentada ART (Crea) correspondente à execução de anteprojeto de cálculo estrutural, e desta forma, nesta fase de solicitação de aprovação, o único responsável técnico é o arquiteto. O Parecer técnico Iphan (SEI 4787648) lista como uma das exigências para aprovação do projeto que “seja apresentado laudo técnico, acompanhado de ART, que comprove que a demolição das alvenarias dobradas no imóvel não trará dano estrutural ao mesmo”. Não foram encontrados no processo o parecer e a RRT solicitados.
Ressaltamos ainda que toda a argumentação realizada pelo Superintendente de Pernambuco é no sentido de viabilizar a dinamização econômica do bairro e permitir o investimento da iniciativa privada. Não é isso que está sendo questionado pelos especialistas e técnicos do Iphan-PE. O que está sendo questionado são as características do projeto e se este se adequa às normativas preservacionistas para garantir a permanência dos valores reconhecidos para a área, ou seja, cumprindo as atribuições que são próprias do Iphan. Outros projetos realizados no Bairro do Recife e citados na Reforma da decisão pelo Superintendente de Pernambuco, como o Paço do Frevo, Torre Malakoff e a Caixa Econômica Cultural, partem da valorização da edificação de valor patrimonial sobre a qual a intervenção é realizada e foram desenvolvidos respeitando à legislação, o que não é o caso deste projeto como ora se apresenta.
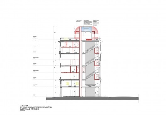
Porque o projeto não pode ser revisto? Vale salientar que entre as pranchas de projeto apresentadas em setembro de 2023 e aquelas apresentadas em fevereiro de 2024, após o recurso por parte dos arquitetos responsáveis, as mudanças projetuais são mínimas (ver imagens abaixo). O desenho, volume e dimensão do restaurante a ser locado na cobertura permanece absolutamente sem alteração, acrescentando-se apenas as especificações dos materiais numa clara tentativa de burlar a legislação utilizando o insustentável argumento da “instalação artística provisória”.
Outra questão sensível no projeto diz respeito à substituição das esquadrias em madeira por esquadrias de alumínio fundido (nos pavimentos superiores). Essa alteração das esquadrias (em forma e no material), do ponto de vista dos procedimentos de restauro e intervenção, descaracteriza a edificação, retira do imóvel características originais que marcam a tipologia do edifício, elemento fundamental para o reconhecimento dos valores do conjunto urbano e arquitetônico edificado no bairro. É uma intervenção não reversível, que abrirá um precedente para que todos os demais edifícios sejam “alterados”, o que poderá promover a descaracterização do conjunto protegido por lei.

Ilustração do projeto disponível no documento de n. 4724916 (projeto de intervenção, 08/23)
Imagem do projeto [Sistema de Consulta Pública do Iphan (SEI!), Processo n. 01498.000920/2023-41]
Ao afirmar que a “autossustentabilidade” do empreendimento pode ser inviabilizada pelas posturas do Iphan, é como se a atual superintendência local advogasse pela adequação da norma ao projeto e não o contrário. Trata-se, portanto, de uma completa inversão de papéis. O texto da Reforma da decisão por parte do Superintendente de Pernambuco ainda fala em “sedimentar o desenvolvimento sustentável”, ao que nos parece temerário promovê-lo sem o respeito à legislação existente. É um contrassenso que o dito “empreendimento privado de interesse público” desconsidere as normas que regulamentam e protegem o próprio interesse público.
Ainda se voltarmos ao documento da Sepul, citado acima e utilizado como base para a Reforma da decisão pelo Superintendente de Pernambuco, é bom lembrar que este afirma que: “A instalação proposta, o Zeppelin, pode ser inserida nas edificações (...), agregado ao patrimônio cultural material em decorrência da necessidade de torná-lo capaz de abrigar o centro cultural proposto.” Se a instalação é uma exigência e condição para tornar os imóveis “capazes de abrigar o centro cultural”, como ela pode ser pensada como provisória? E ainda, se a preocupação é com a sustentabilidade econômica do empreendimento não seria mais coerente investir no uso do restaurante inserido no próprio edifício do que em uma dita “instalação provisória”?
Dessa forma, os argumentos nos parecem buscar justificar o injustificável e servem mais à confusão do que ao esclarecimento. São apresentados exemplos fora de contexto seguidos de dados especulativos de desenvolvimento socioeconômico. Mas é a ideia de efemeridade da intervenção que se destaca como o principal argumento e também o mais danoso, na medida em que abre a possibilidade para que intervenções pretensamente temporárias se instalem à revelia da norma estabelecida. Não é à toa que a imagem do conjunto arquitetônico e urbano, tomada a partir do Marco Zero e destacando os edifícios que encabeçam as quadras que se voltam a este, tornou-se um dos principais cartões postais pelos quais nossa cidade é reconhecida. Reiteramos nosso incondicional apoio à equipe técnica do Iphan-PE, que tem agido de forma coerente com a atribuição que lhe cabe no sentido de zelar pelo cumprimento das orientações para a preservação do conjunto tombado do Bairro do Recife que conforma uma paisagem singular. A reutilização do imóvel é bem vinda e o uso proposto pode ser plenamente absorvido pelo edifício objeto de intervenção, sem desrespeito à legislação vigente, revertendo-se, de fato, em um empreendimento respeitoso e sustentável.
Assim, recorremos à Presidência do Iphan para que esta “reforme a decisão do superintendente de Pernambuco” (constante nos Ofícios n. 26 e n. 27/2024/Iphan_PE-Iphan assinados por Jacques Ribemboim em 04/03/2024), garantindo o reconhecimento da análise técnica realizada pelo próprio Iphan-PE e o respeito à Portaria 420/2010, sendo pela manutenção da desaprovação que consta no Parecer técnico n. 13/2024/Cotec Iphan-PE (SEI n. 5113945), em respeito à legislação preservacionista federal.

Memes para chamar atenção para o tema nas redes sociais, produzidos e divulgados pela equipe de comunicação do Programa de Pós-graduação em Desenvolvimento Urbano da UFPE
Imagem divulgação
notas
1
Anexo 1 – VIEIRA-DE-ARAÚJO, Natália Miranda (PPG.MDU/UFPE; IAB/PE; Icomos Brasil/PE; Icomos Brasil). Carta de Apoio ao Corpo Técnico do Iphan PE e em defesa do conjunto tombado do Bairro do Recife. Recife, Programa de Pós-Graduação em Desenvolvimento Urbano, 26 fev. 2024 <bit.ly/43pd1sb>.
2
Anexo 2 – CAU/PE. Carta de apoio do Conselho de Arquitetura e Urbanismo de Pernambuco (CAU/PE) ao corpo técnico de arquitetos e urbanistas do Instituto do Patrimônio Histórico e Artístico Nacional (Iphan) em defesa do conjunto tombado do Bairro do Recife (Parecer técnico n. 191/2023/Cotec e Parecer técnico n. 13/2024/Cotec Iphan-PE/Iphan_PE). Recife, Conselho de Arquitetura e Urbanismo de Pernambuco, 28 fev. 2024 <bit.ly/3Tja9Zl>.
3
Anexo 3 – RODRIGUES, Claudia Regina de Farias. Moção de Aplausos do Conselho Estadual de Preservação do Patrimônio Cultural (CEPPC). Recife, Conselho Estadual de Preservação do Patrimônio Cultural, 29 fev. 2024 <bit.ly/3PoqryN>.
4
Anexo 4 – Solicitação de posicionamento técnico da Fundarpe – Núcleo Pernambuco do Icomos Brasil, Programa de Pós-Graduação em Desenvolvimento Urbano da UFPE e Instituto de Arquitetos do Brasil – Departamento de Pernambuco – IAB-PE.
5
Anexo 5 – FUNDARPE. Parecer técnico n. 21 (47671079) – GPM/DPPC. Recife, Fundação do Patrimônio Histórico e Artístico de Pernambuco, 11 mar. 2024, p. 6.
6
Anexo 6 – DELEGADOS CULTURAIS. Moção de repúdio contra a aprovação do projeto do restaurante em formato de Zeppelin. Brasília, VI Conferência Nacional de Cultura, 08 mar. 2024.
sobre a autoria do texto
Assinam este Recurso, as seguintes instituições:
locais
Instituto de Arquitetos do Brasil, Departamento Pernambuco – IAB/PE
Programa de Pós-Graduação em Desenvolvimento Urbano da UFPE – PPG.MDU-UFPE
Núcleo Pernambuco do Icomos Brasil
Departamento de Arquitetura e Urbanismo da UFPE
Curso de Arquitetura e Urbanismo da Unicap
Sociedade Olindense de Defesa da Cidade Alta – Sodeca
nacionais
Fórum de Entidades em Defesa do Patrimônio Cultural Brasileiro, aqui representando as dezessete entidades abaixo discriminadas:
Associação Brasileira de Arquitetos Paisagistas – Abap
Associação Nacional de História – Anpuh
Associação Nacional de Pesq. e Pós-Graduação em Arquitetura e Urbanismo – Anparq
Associação Nacional de Pesquisa em Tecnologia e Ciência do Patrimônio – Antecipa
Associação Nacional de Pós-Graduação em Geografia – ANPEGe
Centro Palmares de Estudos e Assessoria por Direitos
Comitê Brasileiro de História da Arte – CBHA
Comitê Brasileiro do Conselho Internacional de Monumentos e Sítios – Icomos Brasil
Comitê Brasileiro do Conselho Internacional de Museus – Icom-BR
Comitê Brasileiro para a Conservação do Patrimônio Industrial – TICCIH Brasil
Federação Nacional dos Arquitetos e Urbanistas – FNA
Federação Nacional dos Estudantes de Arquitetura e Urbanismo – FENEA
Fórum Nacional das Associações de Arquivologia do Brasil – FNArq
Instituto de Arquitetos do Brasil – IAB
Rede Nacional de Arquivistas das Instituições Federais de Ensino – Arquifes
Seção Brasileira do Comitê Internacional para a Documentação e Conservação de Edifícios, Sítios e Conjuntos do Movimento Moderno – Docomomo Brasil
Sociedade Brasileira de Sociologia – SBS